当前位置: 首页> 轴承型号查询> IKO CFKR22V轴承

IKO CFKR22V轴承参数/图纸/资料

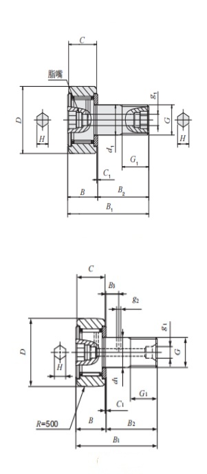
CFKR22VIKO轴承现货供应,库存丰富。滚轮轴承CFKR22V内径mm,外径22mm,厚度12mm,属于原装进口IKO轴承凸轮从动轴承系列。欢迎来电咨询CFKR22V轴承基本参数,技术规格、相关型号等信息。同时我们提供轴承润滑脂,密封件,安装保养工具等售前售后服务!

CFKR22V轴承用途:农业机械、 露天采矿、两轮车和三轮车、减速机、牵引机车/ 外侧轴承/ 内侧轴承、织布机、路面机械、风机、工程机械、铁路车辆用齿轮箱、变速箱、公共汽车等领域。

CFKR22V轴承基本参数/技术规格

品牌
IKO
型号
CFKR22V
类型
滚轮轴承
系列
凸轮从动轴承
d
mm
内径
D
22mm
外径
d
12mm
厚度
Cr
9.570KN
基本额定动载荷, 径向
Cor
14.5KN
基本额定静载荷,径向
Cur
-
疲劳极限载荷, 径向
nϑr
r/min
参考转速
nG
r/min
极限转速
≈m
0.044kg
重量
友情链接:
COPYRIGHT © 2021 INA-BEARING.CN
公司地址:无锡市无锡市崇安区兴源北路818号 公司电话:0510-82325353