当前位置: 首页> 轴承型号查询> IKO CFKR30VUUR轴承

IKO CFKR30VUUR轴承参数/图纸/资料

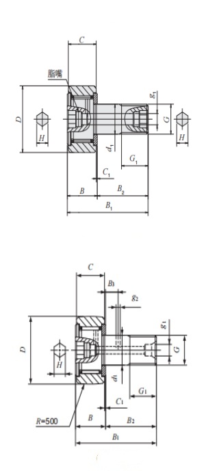
CFKR30VUURIKO轴承现货供应,库存丰富。滚轮轴承CFKR30VUUR内径mm,外径30mm,厚度14mm,属于原装进口IKO轴承凸轮从动轴承系列。欢迎来电咨询CFKR30VUUR轴承基本参数,技术规格、相关型号等信息。同时我们提供轴承润滑脂,密封件,安装保养工具等售前售后服务!

CFKR30VUUR轴承用途:钻床主轴、大型电动机、船舶工业、翻斗货车、离心泵、制浆和造纸、小型船用齿轮箱、 露天采矿、输送设备、振动夯实机、船用推力轴承单元、传动单元等领域。

CFKR30VUUR轴承基本参数/技术规格

品牌
IKO
型号
CFKR30VUUR
类型
滚轮轴承
系列
凸轮从动轴承
d
mm
内径
D
30mm
外径
d
14mm
厚度
Cr
13.5KN
基本额定动载荷, 径向
Cor
19.7KN
基本额定静载荷,径向
Cur
-
疲劳极限载荷, 径向
nϑr
r/min
参考转速
nG
r/min
极限转速
≈m
0.096kg
重量
友情链接:
COPYRIGHT © 2021 INA-BEARING.CN
公司地址:无锡市无锡市崇安区兴源北路818号 公司电话:0510-82325353