当前位置: 首页> 轴承型号查询> IKO CFKR40VUUR轴承

IKO CFKR40VUUR轴承参数/图纸/资料

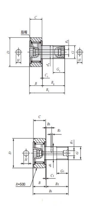
CFKR40VUURIKO轴承现货供应,库存丰富。滚轮轴承CFKR40VUUR内径18mm,外径40mm,厚度20mm,属于原装进口IKO轴承凸轮从动轴承系列。欢迎来电咨询CFKR40VUUR轴承基本参数,技术规格、相关型号等信息。同时我们提供轴承润滑脂,密封件,安装保养工具等售前售后服务!

CFKR40VUUR轴承用途:铁路车辆用齿轮箱、牵引电动机、铁路车辆用齿轮箱、公共汽车、汽车和轻型卡车、大型搅拌机、艇用推进器系统、物料运输、卷扬机、铣床主轴、有轨电车、起重运输机械等领域。

CFKR40VUUR轴承基本参数/技术规格

品牌
IKO
型号
CFKR40VUUR
类型
滚轮轴承
系列
凸轮从动轴承
d
18mm
内径
D
40mm
外径
d
20mm
厚度
Cr
25.3KN
基本额定动载荷, 径向
Cor
51.3KN
基本额定静载荷,径向
Cur
-
疲劳极限载荷, 径向
nϑr
r/min
参考转速
nG
r/min
极限转速
≈m
0.253kg
重量
友情链接:
COPYRIGHT © 2021 INA-BEARING.CN
公司地址:无锡市无锡市崇安区兴源北路818号 公司电话:0510-82325353