当前位置: 首页> 轴承型号查询> IKO CFKR52V轴承

IKO CFKR52V轴承参数/图纸/资料

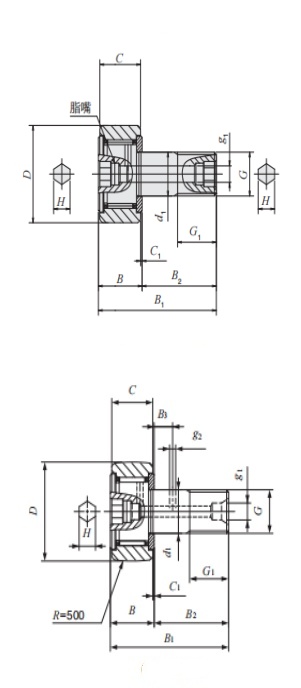
CFKR52VIKO轴承现货供应,库存丰富。滚轮轴承CFKR52V内径20mm,外径52mm,厚度24mm,属于原装进口IKO轴承凸轮从动轴承系列。欢迎来电咨询CFKR52V轴承基本参数,技术规格、相关型号等信息。同时我们提供轴承润滑脂,密封件,安装保养工具等售前售后服务!

CFKR52V轴承用途:大型电动机、工业泵、食品和饮料、轧钢厂、木工机械、轿车轮毂轴承、工业风机、制浆和造纸、变速箱、小型船用齿轮箱、标准电动机、纺织机械等领域。

CFKR52V轴承基本参数/技术规格

品牌
IKO
型号
CFKR52V
类型
滚轮轴承
系列
凸轮从动轴承
d
20mm
内径
D
52mm
外径
d
24mm
厚度
Cr
33.2KN
基本额定动载荷, 径向
Cor
64.5KN
基本额定静载荷,径向
Cur
-
疲劳极限载荷, 径向
nϑr
r/min
参考转速
nG
r/min
极限转速
≈m
0.458kg
重量
友情链接:
COPYRIGHT © 2021 INA-BEARING.CN
公司地址:无锡市无锡市崇安区兴源北路818号 公司电话:0510-82325353