当前位置: 首页> 轴承型号查询> IKO CFKR72V轴承

IKO CFKR72V轴承参数/图纸/资料

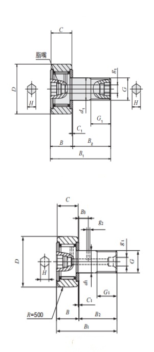
CFKR72VIKO轴承现货供应,库存丰富。滚轮轴承CFKR72V内径24mm,外径72mm,厚度29mm,属于原装进口IKO轴承凸轮从动轴承系列。欢迎来电咨询CFKR72V轴承基本参数,技术规格、相关型号等信息。同时我们提供轴承润滑脂,密封件,安装保养工具等售前售后服务!

CFKR72V轴承用途:采矿、牵引电动机、海洋能源、冲击式破碎机、工业传动、半导体类、大型船用齿轮箱、激振器、有轨电车、造纸机械、钢丝绳提升滑轮、牵引电动机等领域。

CFKR72V轴承基本参数/技术规格

品牌
IKO
型号
CFKR72V
类型
滚轮轴承
系列
凸轮从动轴承
d
24mm
内径
D
72mm
外径
d
29mm
厚度
Cr
46.6KN
基本额定动载荷, 径向
Cor
92KN
基本额定静载荷,径向
Cur
-
疲劳极限载荷, 径向
nϑr
r/min
参考转速
nG
r/min
极限转速
≈m
1.120kg
重量
友情链接:
COPYRIGHT © 2021 INA-BEARING.CN
公司地址:无锡市无锡市崇安区兴源北路818号 公司电话:0510-82325353