当前位置: 首页> 轴承型号查询> IKO CFKR80VUUR轴承

IKO CFKR80VUUR轴承参数/图纸/资料

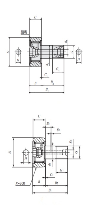
CFKR80VUURIKO轴承现货供应,库存丰富。滚轮轴承CFKR80VUUR内径30mm,外径80mm,厚度35mm,属于原装进口IKO轴承凸轮从动轴承系列。欢迎来电咨询CFKR80VUUR轴承基本参数,技术规格、相关型号等信息。同时我们提供轴承润滑脂,密封件,安装保养工具等售前售后服务!

CFKR80VUUR轴承用途:车床主轴、离心机、牵引电动机、减速机、金属制品、振动筛、牵引电动机、大型电动机、带传动、废弃及循环再利用、注塑成型机、石油和天然气等领域。

CFKR80VUUR轴承基本参数/技术规格

品牌
IKO
型号
CFKR80VUUR
类型
滚轮轴承
系列
凸轮从动轴承
d
30mm
内径
D
80mm
外径
d
35mm
厚度
Cr
67.7KN
基本额定动载荷, 径向
Cor
144KN
基本额定静载荷,径向
Cur
-
疲劳极限载荷, 径向
nϑr
r/min
参考转速
nG
r/min
极限转速
≈m
1.860kg
重量
友情链接:
COPYRIGHT © 2021 INA-BEARING.CN
公司地址:无锡市无锡市崇安区兴源北路818号 公司电话:0510-82325353